Fleet Surgeon's House

Office, Celtic Freeport

Pembroke Dock

4,383 ft²

REF: P808

Under Offer

Celtic Freeport

 

Discover the Ideal Setting for Your Business 

Welcome to The Fleet Surgeon’s House, a distinguished four-story Georgian townhouse offering 3,726 sqft of premium office space within the historic and prestigious former Royal Dockyard. This listed property seamlessly combines period charm with modern functionality, providing an exceptional environment for your business to thrive.

Strategically located near the town centre of Pembroke Dock, as well as Pembroke Port and Ferry Terminal, The Fleet Surgeon’s House ensures easy accessibility for clients and staff alike. The property boasts spacious, well-proportioned offices designed to enhance productivity, along with a versatile basement perfect for archive storage or similar needs.

 

The Fleet Surgeon’s House has recently undergone a high‑quality refurbishment, offering modern, bright, and versatile workspace throughout.

  • Freshly painted crisp white walls create a clean and contemporary feel
  • Blue carpeting laid throughout for a smart, uniform finish
  • Multiple power and data sockets conveniently positioned for flexible workstation layouts

 

Fleet Surgeon’s House offers a well‑structured layout across four floors, providing a variety of flexible workspace options.

Total 11 offices + glass-walled room.

  • Ground Floor: Three well‑proportioned offices plus a modern glass‑walled room, ideal for reception, meetings, collaboration, or display purposes.
  • First Floor: Four individual offices, suitable for private working or small teams.
  • Second Floor: A further four offices offering additional workspace or departmental separation.
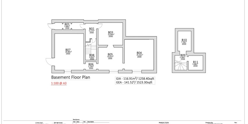
  • Basement: Four versatile rooms that can be used for archive storage, file rooms, or other ancillary requirements.

 

Self Contained Offices To Let - Other uses considered - Subject to planning 

 

 

As a commercial landlord, the Port of Milford Haven has a list of requirements that all tenants must be aware of before starting a tenancy. (i.e: A bond will be required plus three months’ rent payable in advance at the commencement of any tenancy).  For a list of all the requirements, please click the below button.

View Tenancy Requirement Statement

Key Points

This property benefits from:

  • Heating
  • Office Space
  • Parking
  • WC
  • Kitchen
  • Outdoor Space

As part of the Celtic Freeport, locating your business at Pembroke Port has many advantages that aren’t commonly available, including: 


• The ability to negotiate business tax breaks with HMRC, including increased allowances on assets you purchase, and relief on employer’s NIC for the people you employ.
• Providing a significant competitive advantage, given these tax breaks are subject to the location, aren’t commonly available, and can be available for substantial periods of time, often over several years.
• It may enable you to negotiate business rates exemptions with Pembrokeshire County Council. 

Businesses locating at Pembroke Port would also: 
• Be in a strong position for direct Welsh Government or local authority grants when such schemes are announced, particularly if you’re innovating a new product or designing a new process in a carbon 
friendly way.
• Benefit from increased investment in surrounding infrastructure, particularly in decarbonisation and port structure. 
• Add valuable credibility to your own Environmental, Social and Governance/Corporate Sustainability credentials by contributing directly to the UK’s net-zero targets, encouraging green infrastructure investment, creating jobs and developing skills.

To discuss locating your business at Pembroke Port, please contact Sharon Adams, Commercial Manager on 07837 178560.

Find out more
two-column image

Ready to explore your next commercial property venture? 

Enquire now and let’s find the perfect space for your business.

Enquire now